- Diện tích thông thủy khoảng 62.4m2
- Diện tích tim tường khoảng 67.4m2
Với cấu trúc linh hoạt và hợp lý, loại hình căn hộ này lý tưởng cho các gia đình vợ chồng có từ 1 đến 2 con nhỏ. Đồng thời, nó cũng là sự lựa chọn tuyệt vời cho những nhà đầu tư có dòng tiền nhàn rỗi, mong muốn tận dụng kênh đầu tư thông qua việc cho thuê hoặc bán lại. Có thể nói rằng, căn hộ 2 phòng ngủ là nơi ấn tượng của dự án Vinhomes Grand Park vì nó vừa có thể ở vừa có thể đầu tư đáng giá.
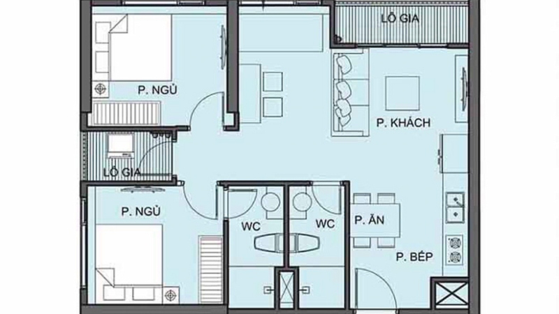
Căn hộ 2 phòng ngủ tại Vinhomes Grand Park, một số trong đó có không gian +1, được đặc trưng bởi sự linh hoạt và tiện ích đa dạng. Các căn hộ này được thiết kế với 1 phòng khách, 2 phòng ngủ, 1 hoặc 2 phòng tắm, bếp, balcony và logia, tạo nên không gian sống đầy đủ và tiện nghi.
















2 đánh giá cho VINHOMES GRAND PARK – Căn hộ 2 phòng ngủ + 1 cùng với 2 nhà vệ sinh
Chưa có đánh giá nào.